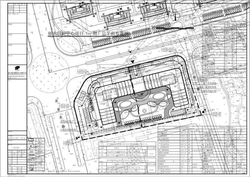
建筑设计方案规划公示
项目总用地面积63222平方米
丽水市区将新建
创新金融中心、创新中心

△创新中心鸟瞰图
11月4日,丽水市自然资源和规划局网站对创新金融中心、创新中心两个项目建筑设计方案进行规划审核公示。

△创新金融中心透视图
创新金融中心
创新金融中心项目位于丽阳街与开发路交叉口东北侧地块,规划用地性质为商业用地、商务金融用地、科研用地等,总用地面积50253平方米,容积率不大于3.2,建筑密度不大于40%,绿地率不小于25%,建筑高度不大于100米(相关指标详见总图)。


创新中心
创新中心项目位于人民路与开发路交叉口东南侧地块,规划用地性质为商业用地、商务金融用地等,总用地面积12969平方米,容积率不大于2.7,建筑密度不大于40%,绿地率不小于25%,建筑高度不大于60米(相关指标详见总图)。


下一步,创新金融中心、创新中心项目地块拟采用带建筑设计方案的方式进行土地出让,目前设计单位已编制完成该地块的建筑设计方案。土地受让人应按照公示方案实施建设,如不涉及平面布局、建筑功能、建筑风格、建筑高度等方案主要内容调整的,不再另行公示。

项目建筑设计方案图纸公示期限为十天(自11月4日至11月14日)。对项目直接涉及公民(法人)之间重大利益关系的,如有异议可在公示期内持证明利害关系的证据材料及本人身份证明(或法人身份证明)向丽水市自然资源和规划局以书面形式提出反馈意见,相关利害关系人有陈述、申辩、申请听证的权利。逾期视为放弃权利。
联系地址:丽水市自然资源和规划局,联系电话2668247。
(来源:丽水网-《丽水日报》)